Création d'une extension de maison à Occagnes (61200)

Besoin client

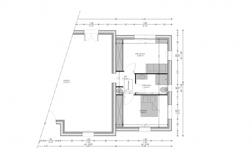
Le couple qui fait appel à notre agence pour ce projet d'agrandissement souhaitait faire construire une extension de maison en vue de gagner en surface habitable. Au vu de leurs besoins et de la configuration de leur terrain, la construction d'un agrandissement latéral s'est naturellement imposée. Nos clients souhaitaient pouvoir transformer cette extension en espace de vie à part entière. Il était question d'aménager une chambre à coucher, une pièce de loisirs, ainsi qu'une salle de bain.

Aujourd'hui, La Maison Des Travaux de l'Orne est fière de vous présenter ce projet de création d'une extension de maison, réalisé à Occagnes.

Projet

Après avoir listé les besoins de nos clients et étudié leur budget, nous leur avons soumis une vue 3D du futur agrandissement. Nous leur avons également proposé les devis de plusieurs artisans. Une fois leur choix arrêté et les plans validés, les travaux de création de cette extension de maison à Occagnes ont pu débuter.

  • Étude et conception du projet d'agrandissement
  • Préparation du terrain : terrassement, fondations
  • Élévation des structures : murs, linteaux, ouvertures
  • Mise en place de la toiture : charpente, couverture, isolation, étanchéité
  • Second œuvre : réseaux (électrique, plomberie, chauffage), isolation thermique et phonique, cloisonnement et pose des revêtements muraux (peinture)
  • Finitions : pose des revêtements de sol, mise en place des équipements (sanitaires, luminaires)

Les plus

Ces travaux de création d'extension de maison à Occagnes répondent parfaitement aux attentes de nos clients. Grâce à cet agrandissement de maison, ils bénéficient désormais d'une surface supplémentaire de 31 m2.

Vous souhaitez faire construire un agrandissement ? Contactez La Maison Des Travaux de l'Orne.

demander un devis gratuit

Nos derniers conseils et actus

Tout savoir sur l'extension de maison
Extension de maison : tout ce que vous devez savoir

Vous souhaitez agrandir votre maison ? Surélévation de maison, dépendance, agrandissement...

Voir tous les conseils et infos